• X
  • Youtube
  • Instagram

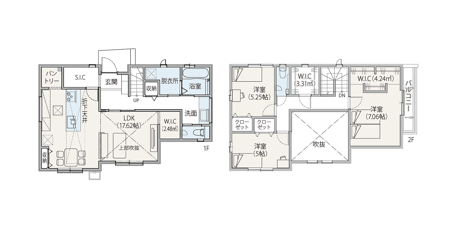
「収納が豊富なダイニング」と「解放感のある吹抜リビング」が、生活空間を広く保つ住まい

間取り:3LDK+3WIC+パントリー
敷地面積:118.82㎡(35.94坪)
延床面積:107.44㎡(32.50坪)

・ウォークインクローゼット3か所
・パントリー
・吹き抜けリビング
・2階建て

pagetop